装修美图 | 曲江湖城大境 430 平米新古典风格曲江龙湖盛景 (12)张

装修美图 | 曲江湖城大境 430 平米新古典风格曲江龙湖盛景 (12)张

家居装修设计网2020-03-05 13:19
刘美玲(高级设计师)主要作品中海国际社区;绿地维多利亚公馆;万科城市花园等等从业年龄12年毕业院校四川美术学院工作经历国家建筑协会注册高级设计师2003年始从事专业室内设计 亚太空间设计师APDA国际论坛代表 中央电视台“交换空间”特聘设计师 “搜狐”超级视频样板间栏目特约拍摄设计师 西安交通广播FM91.6 “我爱我家”特约主持人 TOP长安设计联盟设计师 业之峰精品研发中心高级主任设计师 “房
刘美玲(高级设计师)主要作品中海国际社区;绿地维多利亚公馆;万科城市花园等等从业年龄12年毕业院校四川美术学院工作经历国家建筑协会注册高级设计师2003年始从事专业室内设计 亚太空间设计师APDA国际论坛代表 中央电视台“交换空间”特聘设计师 “搜狐”超级视频样板间栏目特约拍摄设计师 西安交通广播FM91.6 “我爱我家”特约主持人 TOP长安设计联盟设计师 业之峰精品研发中心高级主任设计师 “房周刊”杂志“设计高手”栏目设计师 “三秦都市报”家居版块特邀设计师 西北环保设计院院士所获奖项

国家建筑协会注册高级设计师2003年始从事专业室内设计
亚太空间设计师APDA国际论坛代表
中央电视台“交换空间”特聘设计师
“搜狐”超级视频样板间栏目特约拍摄设计师
西安交通广播FM91.6 “我爱我家”特约主持人
TOP长安设计联盟设计师
业之峰精品研发中心高级主任设计师
“房周刊”杂志“设计高手”栏目设计师
“三秦都市报”家居版块特邀设计师
西北环保设计院院士

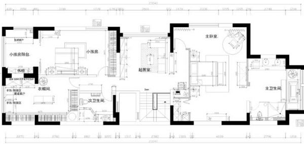
客厅客厅客厅客厅客厅卧室卫生间其它 | 阳台玄关客厅客厅户型图峰翼高端设计中心城市:西安地址:科技一路交汇处59号Tell029-84506364介绍:

雅致、尊贵、高端、大宅

       集团研发中心【全国12个成员之一】

       设计定位:别墅及大户型设计专家。

       设计师注重空间品质,空间设计到施工工艺、家具设计、艺术品陈设等全程私人化无忧服务,将业主从烦琐的家装事物中解脱出来,为业主提供个性方案。(此外,提供施工的队伍均属于陕西金牌施工队)
 

更多案例

相关家居装修设计

装修美图 | 曲江湖城大境 430 平米新古典风格曲江龙湖盛景 (12)张
装修美图 | 嘉风尚城 178 平米新古典风格新奢华 (3)张
装修美图 | 群贤花园 220 平米新古典风格雅致主义 (3)张
装修美图 | 龙城一号 160 平米现代风格自由互动 (4)张
设计案例 | 曲江紫汀苑 163 平米新古典风格韵之静雅 (4)张
家居美图 | 紫薇花园 146 平米新古典风格田园之都 (5)张
家居美图 | 大华·锦绣华城 120 平米新古典风格蓝色简约 (6)张
装修美图 | 香溢天鹅湖 163 平米新古典风格香溢天鹅湖-三居-新古典风格 (9)张
装修美图 | 郑和国际广场 154 平米新古典风格美式典雅 (5)张
今朝·吴晰然——新古典一曲江山享受美妙时光

网址: 装修美图 | 曲江湖城大境 430 平米新古典风格曲江龙湖盛景 (12)张 http://m.jiajum.com/news-view-id-83686.html
首页>家居资讯> 装修美图 | 曲江湖城大境 430 平米新古典风格曲江龙湖盛景 (12)张