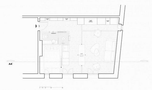
位于巴黎的一座公寓,老建筑的缺点在于格局会不合常理,设计师Richard Guilbault在接受现任屋主夫妻的邀请后,决定重新改变格局,入口处的整面储物柜解决了杂物无处安放的困难,并将原先的墙壁拆除,卧室区域由原来的三分之二变成了三分之一,仅用台阶区隔,将大面积留给公共区域,方便朋友的来访,用最简单的白色搭配淡色木质,也因为这样的开放空间让采光变得十分的良好。
















相关家居装修设计
30平米小户型精心设计 打造单身公寓“摩登蜗居”
巴黎30平米小户型设计典范
现代简约30平米小户型装修案例
38平米小户型蜗居装修 打造别致小户型
55平米小户型装修设计注意事项有哪些
现代风格28平米小户型家居装修设计
60平米小户型的春天 简洁淡雅的吧台橱柜
半包6万打造80平米小户型 蓝绿色调&现代简约风格
小户型设计 简约欧式一居室
现代简装60平米小户型家装案例