140平潘家园小区中式方案

140平潘家园小区中式方案

家居装修设计网2015-08-07 16:17
中式风格这种表现使整个空间,传统中透着现代,现代中揉着古典 适度的装饰是家居不缺乏时代气息,使人在在空间得到精神和身体的放松 舒缓的意境始终是东方人特有的情怀,因此书法常常是成就这种诗意的最好手段 中式风格玄关设计方案 平面户型设计方案 140平潘家园小区中式方案

中式风格这种表现使整个空间,传统中透着现代,现代中揉着古典


适度的装饰是家居不缺乏时代气息,使人在在空间得到精神和身体的放松


舒缓的意境始终是东方人特有的情怀,因此书法常常是成就这种诗意的最好手段


中式风格玄关设计方案


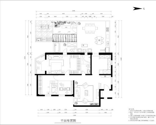
平面户型设计方案


140平潘家园小区中式方案

相关家居装修设计

140平潘家园小区中式方案
潘家园小区-新中式-三居室
140平雅居乐小区四居简欧风格
远洋东方140平新中式设计案例
石家庄玉龙小区中式风格
【今朝设计之星】北大.马燕——九锦台140平精致细节提升品质空间
红杉公馆140平简欧风格案例赏析
金域上郡140平三居简欧风格设计
大户型经典之作 10万元搞定120平雅致新中式家
旭辉御府250平带地下中式风格案例

网址: 140平潘家园小区中式方案 http://m.jiajum.com/cases-view-id-7984.html
首页>装修设计> 140平潘家园小区中式方案