丽都水岸新居

丽都水岸新居

家居装修设计网2015-08-07 10:21
合为设计理念:一半生活、一半艺术、一半梦想。 客厅保持原有的宽敞,在色彩上不超过三色, 开放式书房很符合中式书房的韵味。 阅读区域,让您与家人每天都爱上读书。 谁说书房卧室不能结合,这样就很好啊,方便。 休闲区就是榻榻米最好啦,诗情画意。 影音室,很有感觉,以后会不会在这里待一天。 中式比较传统的卧室,许多都吐出中式独有的特色。 户型图设计老师给业主量身打造一个属于自己的风格。

合为设计理念:一半生活、一半艺术、一半梦想。


客厅保持原有的宽敞,在色彩上不超过三色,


开放式书房很符合中式书房的韵味。


阅读区域,让您与家人每天都爱上读书。


谁说书房卧室不能结合,这样就很好啊,方便。


休闲区就是榻榻米最好啦,诗情画意。


影音室,很有感觉,以后会不会在这里待一天。


中式比较传统的卧室,许多都吐出中式独有的特色。


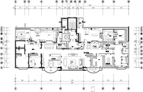
户型图设计老师给业主量身打造一个属于自己的风格。

相关家居装修设计

丽都水岸-混合型风格-三居室
丽都水岸-现代简约-三居室
丽都水岸-东南亚风格-三居室
丽都水岸新居
#右岸#总是对的 It is all right!
今朝·赵青—阳光丽城 营造一个宁静自然之家
芒果说∣肖丽•帮助客户实现最理想的家
梵诺CEO伊丽:以充满东方智慧的柔和家居美学拥抱世界
新世界丽樽法式别墅设计-著名设计师王文泉新作
丽珀卫浴形象广告登陆广州白云国际机场

网址: 丽都水岸新居 http://m.jiajum.com/cases-view-id-7936.html
首页>装修设计> 丽都水岸新居