90平米现代简约风格设计

90平米现代简约风格设计

家居装修设计网2016-08-15 19:06
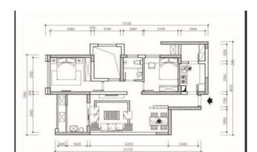
呼应水蓝色系沙发,对向柜体混搭秋香木与北欧橡木,在层次变换间平衡空间色系。 设计师预留格局变更弹性,餐厅与琴房未来可独立划出一房 沿着墙面安排大面收纳衣柜与梳妆台功能,刻意不做满的设计去化压迫感。 规划基本配备的女儿房以灰粉色调呈现成熟感的甜蜜气息。 设计,总是有一个激发创意的起始点,有时是一帧别具意义的照片、有时候是某段令人感动的人生风景,本案希望在实惠的金钱预算下,完成有质感的品味居宅,因此规

呼应水蓝色系沙发,对向柜体混搭秋香木与北欧橡木,在层次变换间平衡空间色系。


设计师预留格局变更弹性,餐厅与琴房未来可独立划出一房


沿着墙面安排大面收纳衣柜与梳妆台功能,刻意不做满的设计去化压迫感。


规划基本配备的女儿房以灰粉色调呈现成熟感的甜蜜气息。


设计,总是有一个激发创意的起始点,有时是一帧别具意义的照片、有时候是某段令人感动的人生风景,本案希望在实惠的金钱预算下,完成有质感的品味居宅,因此规划上除了预留未来变更的弹性,也从IKEA家具出发,打造经济实惠的平价时尚北欧风。惠的平价时尚北欧风。

相关家居装修设计

90平米现代简约风格,没造型却精致极简
90平米现代简约设计两居室装修图片
现代简约90平米两居室设计案例
90平米现代简约装修
80平米现代简约风格精装设计
以色列现代风格90平米公寓 简单就好
80平米现代简约设计风格
98平米现代简约风格设计
90平米现代简约风格
128平米现代简约风格设计

网址: 90平米现代简约风格设计 http://m.jiajum.com/cases-view-id-21618.html
首页>装修设计> 90平米现代简约风格设计