北京元洲装饰-理想城-现代简约风格

北京元洲装饰-理想城-现代简约风格

家居装修设计网2016-07-30 11:11
客厅:整个空间已简洁干净的蓝白色调为主,让整个空间干净、明亮、舒适,电视背景墙面艺术漆的图案处理,与整个空间搭配相呼应。 另一个角度的客厅! 书房:书房则透明玻璃为主要配饰,使空间更通透,惬意! 餐厅:拆除厨房原始结构墙,将厨房和餐厅连为一体,使整个空间变得更加开阔,增加了房屋的通风性和采光性,导台的设计更提高了家庭成员的互动性,让空间不受墙体的拘束 南北通透,采光效果好

客厅:整个空间已简洁干净的蓝白色调为主,让整个空间干净、明亮、舒适,电视背景墙面艺术漆的图案处理,与整个空间搭配相呼应。


另一个角度的客厅!


书房:书房则透明玻璃为主要配饰,使空间更通透,惬意!


餐厅:拆除厨房原始结构墙,将厨房和餐厅连为一体,使整个空间变得更加开阔,增加了房屋的通风性和采光性,导台的设计更提高了家庭成员的互动性,让空间不受墙体的拘束


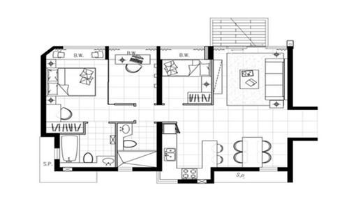
南北通透,采光效果好

相关家居装修设计

北京元洲装饰-理想城-现代简约风格
北京元洲装饰-京铁和园-现代简约
北京元洲装饰-华贸城-简欧风格
北京元洲装饰-龙湖时代天街简约美式
北京实创装饰-北京城建上河湾装修-简约风格
北京实创装饰中信城95平现代简约风格
鸿坤理想城-现代简约-三居室
北京元洲装饰-孔雀城别墅-欧式风格
北京元洲装饰-枫林绿洲-现代简约
北京城建·红木林-现代简约-四居室

网址: 北京元洲装饰-理想城-现代简约风格 http://m.jiajum.com/cases-view-id-21368.html
首页>装修设计> 北京元洲装饰-理想城-现代简约风格