北京臻园三居室新中式风格设计案例展示

北京臻园三居室新中式风格设计案例展示

家居装修设计网2016-07-21 10:18
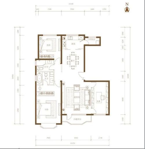
餐厅的餐桌也是使用的木质中式圆桌。 厨房多以棕色调为主,看起来端庄大方。 客厅多以中式样式家居来装扮,但不是现代风格元素。 书房的书桌和书架也多是中式样式,还会摆些古中式饰品来装扮 卫生间也会用中式壁画做装修的 卧室的灯具和座椅是新中式风格的典型表现 业主需求:喜欢新中式风格设计,但不想太过复古设计理念:通过对传统文化的认识,将现代元素和传统元素结合在一起,以现代人的审美需求来打造富有传统韵味的事

餐厅的餐桌也是使用的木质中式圆桌。


厨房多以棕色调为主,看起来端庄大方。


客厅多以中式样式家居来装扮,但不是现代风格元素。


书房的书桌和书架也多是中式样式,还会摆些古中式饰品来装扮


卫生间也会用中式壁画做装修的


卧室的灯具和座椅是新中式风格的典型表现


业主需求:喜欢新中式风格设计,但不想太过复古设计理念:通过对传统文化的认识,将现代元素和传统元素结合在一起,以现代人的审美需求来打造富有传统韵味的事物,让传统艺术在当今社会得到合适的体现。预算说明:设计费+基础施工费

相关家居装修设计

北京臻园三居室新中式风格设计案例展示
北京臻园三居新中式风格设计案例展示
北京臻园三居室美式风格设计案例展示
北京臻园三居美式风格设计案例展示
北京臻园三居室新古典风格设计案例展示
北京臻园三居新中式家装设计案例展示
北京臻园三居室古典风格设计案例展示
北京臻园三居室美式风格家装设计案例展示
北京臻园三居室新古典家装设计案例展示
北京臻园新古典简欧三居室风格设计案例

网址: 北京臻园三居室新中式风格设计案例展示 http://m.jiajum.com/cases-view-id-21129.html
首页>装修设计> 北京臻园三居室新中式风格设计案例展示